Les Résidences Florida

Présentation

Présentation

Les Résidences Florida, un ensemble résidentiel haut de gamme, se niche à proximité de l’autoroute Abidjan-Bassam, à seulement quinze minutes du cœur d’Abidjan, le Plateau. Ce projet exclusif propose une cinquantaine de villas allant de 5 à 7 pièces, chacune construite sur une superficie de base de 600 m² dont environ 320 m² de superficie habitable. Ces résidences clé en main offrent des équipements et des finitions de qualité supérieure, assurant un style de vie luxueux et confortable.

Référence: Permis de construire N° 14-0053/MLAU/DGLCV/DAM

Offres

L’ensemble du lotissement entièrement viabilisé et équipé dans un environnement résidentiel sécurisé, avec la construction d’un Club House intégrant une piscine + une salle de sport.

Commodités

Conditions de Vente

Conditions de vente: Un apport de 20% pour la réservation et un échéancier sur 24 mois pour le solde ou soldé par prêt bancaire.

Nos partenaires bancaires

Offres

L’ensemble du lotissement entièrement viabilisé et équipé dans un environnement résidentiel sécurisé, avec la construction d’un Club House intégrant une piscine + une salle de sport.

Commodités

Conditions de Vente

Conditions de vente: Un apport de 20% pour la réservation et un échéancier sur 24 mois pour le solde ou soldé par prêt bancaire.

Nos partenaires bancaires

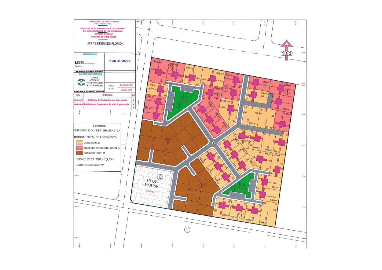
Plan de Masse

Plan de Masse - Les Résidences Florida​

Legende

Nombre Total de Logements​

  •  SUPERFICIE DU SITE: 5HA 59A 21CA
  •  ESPACE VERT: 2569 m² (4,6%)
  •  CLUB HOUSE: 3626 m²
  • CONSTRUIS: 25
  •  EN COURS DE CONSTRUCTION: 14
  •  NON CONSTRUIS: 27

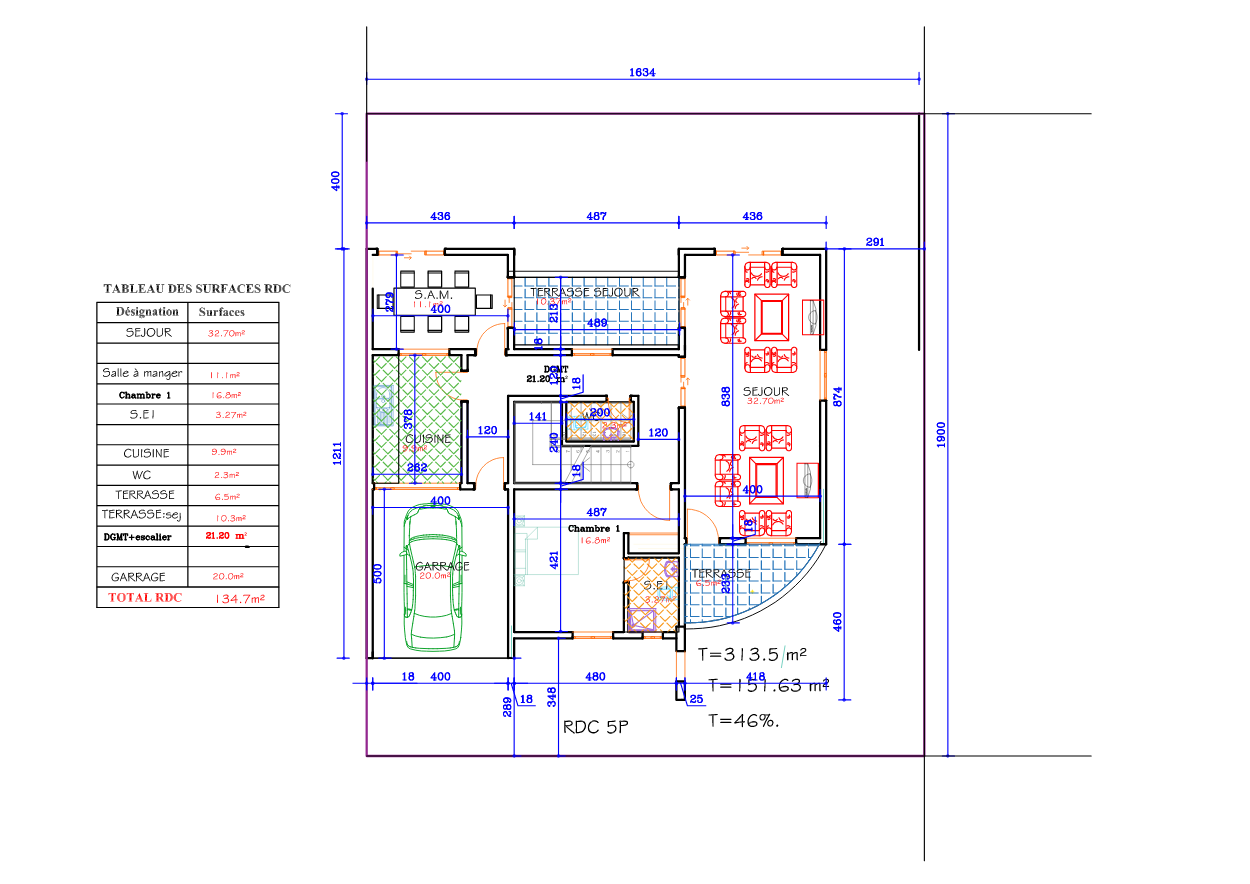
Tableau de surface RDC

Désignation Surfaces
Chambre Parent + Dress
27.13 m²
S.E P
6 m²
Chambre 2
16.8 m²
S.E 2
3.2 m²
Chambre 3
S.E 3
Balcon
6.7 m²
DGMT
5.3 m²
Total RDC
65.13 m²

Villa de 5 Pièces

Rez-de-chaussée

Tableau de surface RDC

Désignation Surfaces
Chambre Parent + Dress
27.13 m²
S.E P
6 m²
Chambre 2
16.8 m²
S.E 2
3.2 m²
Chambre 3
S.E 3
Balcon
6.7 m²
DGMT
5.3 m²
Total RDC
65.13 m²

Villa de 5 Pièces

Etage

Tableau de surface RDC

Désignation Surfaces
Chambre Parent + Dress
27.13 m²
S.E P
6 m²
Chambre 2
16.8 m²
S.E 2
3.2 m²
Chambre 3
S.E 3
Balcon
6.7 m²
DGMT
5.3 m²
Total RDC
65.13 m²

Villa de 5 Pièces

Façades

Villa de 6 Pièces

Rez-de-chaussée

Tableau de surface RDC

Désignation Surfaces
Chambre Parent + Dress
27.13 m²
S.E P
6 m²
Chambre 2
16.8 m²
S.E 2
3.2 m²
Chambre 3
S.E 3
Balcon
6.7 m²
DGMT
5.3 m²
Total RDC
65.13 m²

Villa de 6 Pièces

Etage

Tableau de surface RDC

Désignation Surfaces
Chambre Parent + Dress
27.13 m²
S.E P
6 m²
Chambre 2
16.8 m²
S.E 2
3.2 m²
Chambre 3
S.E 3
Balcon
6.7 m²
DGMT
5.3 m²
Total RDC
65.13 m²

Villa de 6 Pièces

Façades

Villa de 7 Pièces

Rez-de-chaussée

Villa de 7 Pièces

Etage

Villa de 7 Pièces

Façades

Suivi des Travaux

Suivi des Travaux

Galerie de Réalisations

Découvrez l'exclusivité des Résidences Florida

Les Résidences Florida vous offrent un style de vie clé en main, alliant luxe et confort à seulement 15 minutes d’Abidjan. Explorez nos villas duplex exclusives et inscrivez-vous ci-dessous pour en savoir plus sur cette opportunité unique.

Laissez-nous transformer votre quotidien en une expérience de raffinement absolu dès aujourd’hui !

Découvrez l'exclusivité des Résidences Florida

Les Résidences Florida vous offrent un style de vie clé en main, alliant luxe et confort à seulement 15 minutes d’Abidjan. Explorez nos villas duplex exclusives et inscrivez-vous ci-dessous pour en savoir plus sur cette opportunité unique.

Laissez-nous transformer votre quotidien en une expérience de raffinement absolu dès aujourd’hui !

Contactez-nous pour
en savoir plus.

Nous aimons vous loger

Découvrez Nos Projets

Contactez-nous pour en savoir plus.